110 mq
L'immobiliare Centrale e Servizi Vari di Ostorero Rag. Claudia di Giaveno (Torino), Propone in Affitto - Locazione
🏢 Ufficio Prestigioso in Affitto nel Centro Storico di Giaveno (TO)
📍 Piazza San Lorenzo n. 7 Location d'eccellenza per professionisti
🔹 Descrizione dell'immobile:
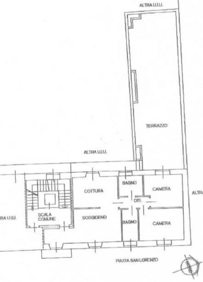
Nel cuore pulsante di Giaveno, affacciato direttamente sulla suggestiva Piazza San Lorenzo, proponiamo in locazione un elegante alloggio ad uso Ufficio di 110 m², situato al primo piano di una palazzina signorile con ascensore.
L'immobile si sviluppa su un livello ed è inserito in un contesto condominiale riservato e ben curato. La disposizione interna è ideale per studi professionali, agenzie, ambulatori o attività di consulenza.
🧭 Composizione:
🛋 Sala d'attesa (ex soggiorno): accogliente e luminosa
🗂 Ufficio segreteria (ex cucina): funzionale e versatile
🚻 Due bagni separati: uno per clienti, uno per il personale
🧑💼 Due locali Ufficio (ex camere): ampi e riservati
🌟 Punti di forza:
Posizione strategica: direttamente sulla piazza principale, visibilità garantita
Contesto urbano vivace: circondato da negozi, bar, ristoranti, scuole e servizi
Facilità di accesso: ottimi collegamenti con Torino e la Val Sangone
Libero subito: pronto per essere personalizzato secondo le tue esigenze
Riscaldamento autonomo con valvole termostatiche e contatore a gas metano
📊 Dettagli tecnici:
Caratteristica Valore
Superficie 110 m²
Categoria Catastale A/2 Classe 2 Vani 5,5
Rendita Catastale €639,12
Spese condominiali €65-70/mese
Riscaldamento stimato €2.500/anno
Cauzione richiesta 2 mensilità
Requisiti Referenze verificabili
🏞 Lavorare a Giaveno:
Giaveno è una cittadina immersa nel verde delle Prealpi della Val Sangone, famosa per la sua qualità della vita, i suoi eventi culturali e la tradizione gastronomica (celebre per i funghi porcini e il mercato settimanale). Piazza San Lorenzo è il cuore della comunità, dove storia e modernità si incontrano.
📌 Un Ufficio che racconta chi sei: professionale, visibile, nel posto giusto. 📞 Contattaci oggi stesso per fissare una visita e scoprire come questo spazio può valorizzare la tua attività

110 mq